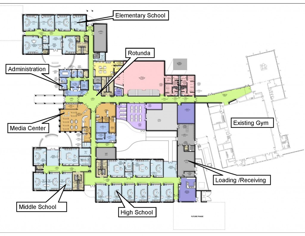
The challenge for the Ohio School for the Deaf (OSD) project was based on the following questions:
* How can we plan and design “five schools within one school”?
* How can a variety of educational approaches be accommodated on the same site?
* How can the school be made to feel more home-like than institutional for the students?

Dickinson + Partners along with SHP Leading Design of Columbus, was selected to lead the campus wide visionary process and then propose a building program and facility master plan based on the stakeholder’s goals. The State and steering committee reevaluated priorities for the original State-funded scope of work and our team integrated the strategic objectives identified into the master plan. We then helped define the Phase One construction scope of work based on the original budget set forth by the State to meet the administration’s educational and facility goals.

Major programming elements utilized to create a new unified campus include: consolidated and centralized single administration, relocation of elementary, middle and high school to one location but with separate entrances for different age levels, creation of new campus commons and kitchen to reinforce the unified campus, internal building circulation for visual student safety and control, creation of media center, and expansion of new vocational spaces to meet the curriculum goals for those programs.
Eight residence facilities for the deaf and hard-of-hearing were also developed and designed as part of this phase.
Plan Below:


